
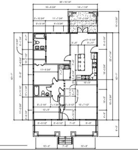
CONCEPT PLANS FOR A SMALL HOUSE BUILD
While our primary focus is commercial design and project management, EDGE has the capability to support regional home builders and home owners who are conceptualizing new builds and renovations.
We have project partners in engineering and architecture who collaborate as needed when structural components are part of a project.
GUEST SUITE RENOVATION – OLD FARMHOUSE GOES CHIC.


Old farmhouse renovation…..the living room has no exterior windows so we went for high drama with Sherwin Williams “Caviar” ceiling and wall paint to hide imperfections in the old plaster…and the feature wall with led wall-wash lighting added a mid-century flair to complement the furnishings. In the bedroom we installed custom wainscotting. This guest suite was used as a short term rental and the upscale was done on a shoestring budget.
Here are pictures showing the guest suite prior to the renovation…..the finishes throughout and wrinkled vinyl wallcovering in the bedroom were likely installed in the 1980s.
